Ruszyła budowa Tarasy Belvedere w Malborku.
Malbork Pokaż na mapie ›
Ogłoszenie archiwalne Wygasło: Wtorek, 07 Październik, 2025 20:35
2 016 210 zł
Szczegóły ogłoszenia
- Kategoria: Inne nieruchomości / Sprzedaż
- Powierzchnia:192 m2
- Sprzedaż:Pośrednik
- Cena: 2 016 210 zł
Opis oferty
Deweloper Projekt Jantar rozpoczął budowę chyba najciekawszejinwestycji na terenie miasta Malborka "Tarasy Belvedere". Pozwolenie
na budowę - Decyzja nr 60/2025 z dnia 21.03.2025.
Inwestycja realizowana w ścisłym centrum Malborka w sąsiedztwie
ulicy Tadeusza Kościuszki - centrum życia mieszkańców miasta, w
niedalekim sąsiedztwie wpisanego na listę światowego dziedzictwa
UNESCO - Zamku w Malborku.
Tarasy Belvedere to inwestycja która otwiera nowe możliwości
mieszkania i inwestowania w centrum miasta.
Inwestycja będzie realizowana w centrum miasta, obejmuje swoim
zasięgiem realizację 5 budynków wielorodzinnych, zawierających
łącznie 170 lokali.
Komunikacja odbywać się będzie od strony ul. Kościuszki (budynki D
,E i G) oraz od strony ul. Mazurów (budynki A,B,C). Nowoczesna
architektura, przestronne tarasy i balkony, wysoka jakość
wykończenia części wspólnych, hale garażowe, nowoczesne windy,
tereny rekreacyjne, place zabaw dla dzieci w końcu pasaż handlowy
zapewniający funkcjonowanie mieszkańcom osiedla. Całość
inwestycji bardzo przemyślana i bardzo podniesie jakość i standard
budownictwa w Malborku.
Inwestycja realizowana zgodnie z ustawą deweloperską, zapewniającą
nabywcom 100 % gwarancję terminów, ceny i jakości budowy.
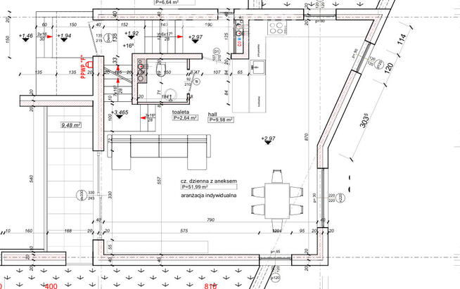
Oferta dotyczy nieruchomości usytuowanej w budynku G. Nieruchomość
składa się z dwóch niezależnych lokali które posiadają dwa
niezależne wejścia z własnymi stanowiskami parkingowymi.
Lokal numer G1 usytuowany na poziomie przyziemia z z wystawą okien od
strony północnej o powierzchni użytkowej 58,22 m2 w skład którego
wchodzi pokój dzienny z aneksem kuchennym oraz łazienka.
Razem z lokalem można nabyć jedno zewnętrzne miejsce postojowe
razem zewnętrzne za łączną cenę 30.000,-zł brutto.
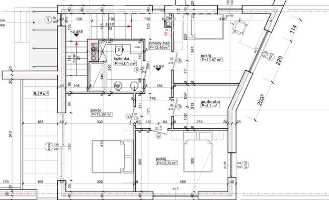
Lokal numer G2 składający się z dwóch kondygnacji o powierzchni
użytkowej 133,80 m2 w skład którego wchodzi pokój dzienny z
aneksem kuchennym, trzy sypialnie , korytarz oraz dwie łazienki.
Razem z lokalem można nabyć dwa miejsca postojowe w hali garażowej
za łączną cenę 150.000,-zł brutto.
Rozpoczęcie prac budowlanych – lato 2025 , zakończenie maj 2028
roku.
Można już zawierać umowy rezerwacyjne - opłata rezerwacyjna w
wysokości 1% wartości lokalu.
Cena lokalu zawiera 8 % podatek Vat, miejsce w hali garażowej z
komórką zawiera 23 % podatku Vat.
Więcej informacji pod nr telefonu podanym w ogłoszeniu oraz na
stronie inwestycji.
https://www tarasy-belvedere pl/
Zapraszam do kontaktu
Sławomir Grochecki
Zapraszam również do naszego biura sprzedaży przy ul. Mickiewicza
20/1 w Malborku .
Poszukujesz kredytu na sfinansowanie zakupu mieszkania? Nasi doradcy
kredytowi bez dodatkowych kosztów porówna i dobierze finansowanie
najlepiej dopasowane do Twoich potrzeb.
"Właścicielem ogłoszenia wraz z jego elementami jest Freedom
Nieruchomości Sp. z o.o. lub podmioty współpracujące. Wszelkie
prawa zastrzeżone. Kopiowanie, rozpowszechnianie oraz korzystanie z
niniejszych materiałów w jakikolwiek inny sposób wykraczający poza
dozwolony użytek określony przepisami ustawy z 4 lutego 1994 r. o
prawie autorskim i prawach pokrewnych (Dz. U. 1994, nr 24 poz. 83 z
późn. zm.) bez pisemnej zgody Freedom Nieruchomości Sp. z o.o. lub
podmiotów współpracujących jest zabronione i może stanowić
podstawę odpowiedzialności cywilnej oraz karnej.
Ponadto niniejsze materiały stanowią tajemnicę przedsiębiorstwa
Freedom Nieruchomości Sp. z o.o. lub podmiotów współpracujących w
rozumieniu ustawy z dnia 16 kwietnia 1993 r. o zwalczaniu nieuczciwej
konkurencji (Dz. U. z 2003 r., Nr 153, poz. 1503 z późn. zm.).
Niniejsze ogłoszenie nie stanowi oferty w rozumieniu Kodeksu
Cywilnego, lecz ma charakter informacyjny."
Sprawdź zainteresowanie tym ogłoszeniem
Wyświetlenia
Data dodania
Ostatnio widziany
Obserwujących
Wysłane zapytania
Odsłony telefonu
To ogłoszenie jest archiwalne i może być nieaktualne.
Sławomir Grochecki
Konto firmowe
Na Lento.pl od 02 sty 2024
Odpowiada szybko
Strona użytkownika
- Wypromuj ogłoszenie
- Zgłoś naruszenie
- Edytuj/usuń ogłoszenie
- Udostępnij ogłoszenie
- Dodaj na Facebook
















